ANNA MARIA – Building Official David Gilson and City Planner Ashley Austin presented their review of Mote Marine’s plans to install an educational outreach center on the Anna Maria City Pier to commissioners last week.
Mayor Dan Murphy received the latest plans from Mote Marine on Oct. 13. Gilson and Austin provided their analysis of the plans during the special city commission meeting held on Thursday, Oct. 20.
He said the purpose of the meeting was for Gilson and Austin to share their analysis of the plans, with a focus on two primary criteria – assessing whether the plans meet the city’s technical requirements and whether the proposed plans meet the city’s quality expectations for a project on city-owned property.
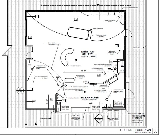
Mote’s educational outreach center will occupy the larger and currently vacant city-owned building at the T-end of the City Pier. The smaller pier building is occupied by the City Pier Grill & Bait Shop.
Murphy sought the commissioners’ initial thoughts and comments on the plans, saying that Gilson would send questions and comments to Mote representatives. The revised plans will then be presented to the commission, which will be asked to approve the plans and authorize the building permits needed for Mote to begin the interior buildout of the pier building and the installation of its marine life exhibits.
Gilson said if the plans had been submitted as a standard construction project, they’d be very close to being accepted, but with the city being the property owner, the permitting process is different.

“The way the lease is written, the owner (the city) is going to have their fingers in this entire project. The lease puts us right in the thick of it and that’s going to be very helpful,” Gilson said.
Gilson recommended the city specify that Square D electrical breaker panels are used because city staff is familiar with that brand. He also requested additional information from Mote regarding the invertebrate touch tank exhibit that requires an electrical connection, specifically, who’s serving as Mote’s contracted electrical engineer.
Gilson said the plans include a blanket statement regarding the use of corrosion-resistant hardware. He recommends the plans specify that the screws, nuts, bolts and other hardware used will be made of stainless steel, similar to what was used for the construction of the pier and pier buildings.
The plans don’t specify which type of ceiling tiles will be used. Because of the saltwater exhibits to be contained inside the building, Gilson recommends using higher quality ceiling panels that resemble drywall and are more humidity resistant than normal ceiling tiles.
Austin said the installation of an educational outreach center that offers incidental souvenir sales in an already existing space is considered a tenant buildout rather than new construction, so setback restrictions and other construction criteria don’t apply. She noted the plans don’t address signs and said Mote will need to apply for a separate sign permit.

Commissioner Robert Kingan asked if the plans include a backup generator. Gilson said he didn’t see anything in the plans about a generator, but that he talked to someone at Mote who said battery backups would be used to keep the live exhibits oxygenated during a power outage. Gilson said the safety of the sea creatures is ultimately Mote’s responsibility.
Kingan asked if Mote had identified a specific contractor. Gilson said Mote has a contractor that they regularly work with but the plans and building permit applications have not yet been officially submitted to the city.
Commissioner Mark Short asked Murphy if the plans he received on Oct. 13 satisfy the deadlines the city commission established earlier this year when granting Mote a lengthy extension to complete the long-delayed project.
Murphy said the latest plans comply, and that the city will hold Mote Marine to the March 2023 completion and opening deadline the commission established earlier this year.














