ANNA MARIA – City officials and city staff are working on a new ordinance that would allow regulated beach tent and beach cabana rentals along the specific stretch of Anna Maria shoreline known as Gulf Front Park, from Oak Avenue to Magnolia Avenue.
During the Anna Maria City Commission workshop on Jan. 5, Mayor Mark Short, the city commission, city staff and two cabana rental company owners spent more than an hour discussing the draft version of a new parks and recreation ordinance prepared by City Attorney Becky Vose.
Subject to further revision when presented to the city commission for two more readings and final adoption, the proposed ordinance is expected to take effect on March 1. The first reading of the revised ordinance is scheduled for Thursday, Jan. 22.
The intent of the new ordinance is to allow, but regulate, the placement and use of temporary beach structures along a specific portion of the Anna Maria shoreline, and do so in a manner that still provides space for other public beachgoers.
The proposed cabana and tent allowances and regulations being discussed would apply to the beach area known as Gulf Front Park, and most of the new regulations would apply to all cabanas, tents and other temporary beach structures, whether they’re privately owned and used or commercially owned and rented to others.
BACKGROUND
In July, Short told city commissioners the city’s current code of ordinances prohibits all commercial beach activity in the coastal conservation zones and recreation open space zones that encompass most of the city’s beach shorelines.

The long-ago adopted city code also prohibits multi-legged tents and cabanas of any kind (commercial or personal) in the more restrictive coastal conservation zones where only single-pole umbrellas or shade structures are allowed.
During the July discussion, no one could recall the beach activity regulations ever being enforced; and Short said enforcement would remain suspended until the regulations were revised.
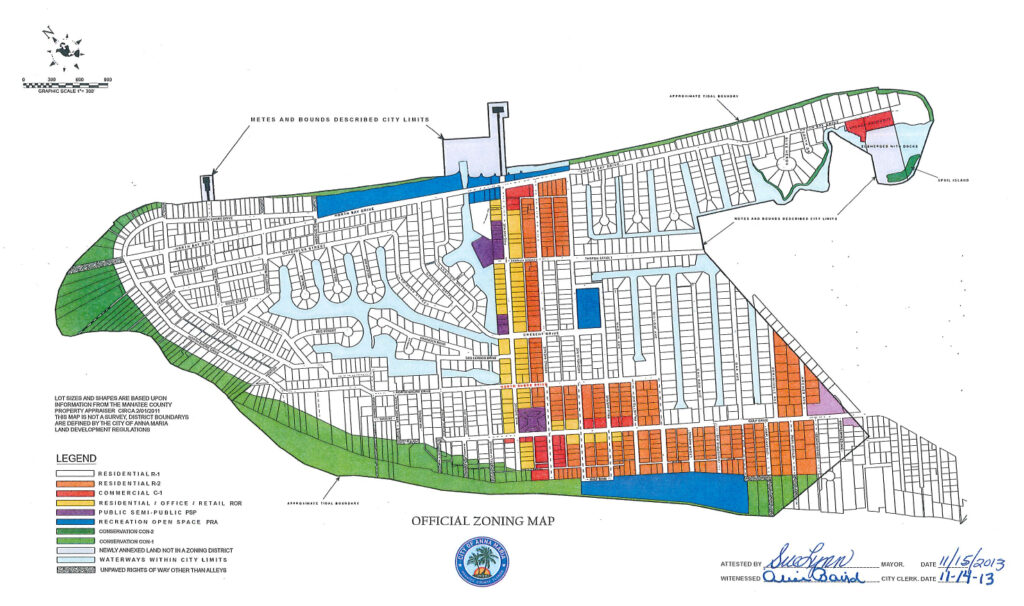
According to the city’s color-coded zoning map adopted in 2013, the largest coastal conservation zone (highlighted in green on the map) extends from Magnolia Avenue to the northern tip of Bean Point and includes the beach area in front of the Sandbar restaurant.
The recreation open space zones (highlighted in blue on the zoning map) include the Gulf Front Park, Bayfront Park and Anna Maria City Pier shorelines.
PROPOSED REVISIONS
The cabana and tent-related code revisions being considered pertain to the Gulf Front Park area, from Oak Avenue to Magnolia Avenue.

The proposed ordinance presented on Jan. 5 initially said, “Temporary Beach Structures are limited to personal tents, cabanas or other sunshade structures which shall not exceed 100 square feet of ground coverage, inclusive of any poles, pegs, tie-downs, anchors, weights, sandbags or the like.”
Code Enforcement Manager Dave DeZutter said he showed the mayor a photo earlier that day of a sail-like tent that was approximately 30 feet long.
Commissioner Gary McMullen said 10-foot-by-10-foot tents are among the smaller tents seen on Anna Maria beaches these days and 12-by-12 tents are more common. He suggested revising the ordinance accordingly.
Commissioner Chris Arendt agreed and said, “It’s not that much larger but it provides a surprisingly larger amount of shade.”
When asked by the commission what size his rented cabanas are, My Beach Concierge owner Peery Heldreth said his cabanas have a 10-by-10 footprint.
Beach Dog Island Essentials owner Doug Egan said his cabanas have 10’ x 10’ frames but the canopies open to 13-by-13. Egan said his support structures would comply with a 12-by-12 ground cover restriction, but his total canopy coverage might not comply with a 144-square-foot total space restriction.

Regarding the intent of the new regulations, Commission Chair Charlie Salem said, “The reason we’re concerned about that is you’re basically roping off a part of the beach for yourself. We’re trying to make sure the beach isn’t cordoned off for private or public entities for their own use and excluding other people.”
The commission tentatively agreed to increase the proposed space limit to 13-by-13 (169 square feet), but it was noted that regulation could be revised during the formal ordinance adoption process in February.
The 169-square-foot space limit would apply to all temporary beach structures (commercial and personal). The ordinance would also require accessory beach equipment – beach chairs, coolers, towels, baby items – to be contained within the allowed footprint.
The proposed ordinance says, “No more than two commercially rented cabanas may be placed within 50 linear feet of each other, measured in any direction.”
This would allow two rented cabanas to be placed side by side for the same group of users, not to exceed 15 total users.
Short said this restriction would establish a perimeter that prevents five or six cabanas from being set up in a row.
“We have pictures from the day after Christmas of five in a row and five in a row and I personally don’t want to see that,” Short said.
Sgt. Brett Getman, from the Manatee County Sheriff’s Office Anna Maria Unit, said Dec. 26 was perhaps the busiest beach day he’s seen during his six years in Anna Maria.
Getman said the 50 feet of separation between two side by side tents would make it easier for law enforcement, code enforcement and first responders to patrol the beach and respond to emergencies.
The same morning start time restriction that applies to construction workers, landscapers and others would prohibit cabana and tent rental companies from setting up their equipment until 7 a.m. The ordinance will require cabanas, tents and other temporary beach structures to be removed from the beach within a specific, yet to be determined, time period after sunset.

“The intent here is to look forward,” Short said. “I’m not opposed to commercial activity on the beach as long as we control what that activity is, and as long as we can control what the limitations to that activity will be because the majority of the people that come to these beaches bring their own stuff.”
He said the cabana rental companies provide a valuable service, but limitations need to be established so everyone has the ability and flexibility to enjoy the beach.
Short said the existing single-pole structure limitation in the coastal conservation zones might be reviewed as a separate process at some point in the future.
In response to a question from Heldreth, Short said considering changing the zoning in front of the Sandbar restaurant from coastal conservation to a recreation open space zoning designation would be a process that would start with the city’s planning and zoning board.













