Building permit sought for beachfront property
ANNA MARIA – Bradenton resident Fedora Campbell is moving forward with her plan to build a three-story, single-family home on her undeveloped beachfront property at 105 Elm Ave.
“There has been so much notoriety about proposed construction at 105 Elm in our Con 1 (Conservation) Zone,” Mayor Dan Murphy told city commissioners on Feb. 10, referring to objections by neighbors that the project would block their Gulf views. “It’s not appropriate this afternoon to weigh in on this. I just want to you be cognizant of the fact that late last week we received a building permit application to do construction in that lot at 105 Elm and that it’s under review.”
Murphy did not provide any additional details regarding the city permitting process.
The building permit application obtained from the city clerk’s office was signed by Campbell and lists Greg Gagne as the permit applicant and Anna Maria-based Gagne Construction as the construction company.
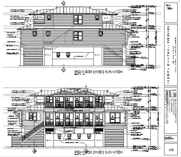
The construction agreement between Campbell and Gagne Construction references the construction of a new single-family home and driveway and a $1.635 million contract price that calls for 50% payment upon acceptance of the agreement and the remaining balance due upon completion of the construction project.

A site plan included in the permitting documents refers to an area identified as “Proposed Elm Avenue,” which indicates a desire to seek from the city an extension of Elm Avenue that would provide for a driveway connection and vehicular access to the 105 Elm property that currently has no such access. The drainage plan refers to a driveway connected to a proposed shell-covered portion of Elm Ave. If approved by the city, the extended portion of Elm Avenue would be located on a currently undeveloped, unpaved city-owned right of way that includes a beach access path.

Section 114-421 of the city code of ordinances addresses prohibited uses within city-owned rights of way and the need for city commission approval to encumber a city-owned right of way: “Generally, with the exception of the planting of grass or 250 filter mix, no encumbrances of any kind, such as trees, bushes, rocks, stones, plantings, pea gravel, crushed shell, etc., shall be placed or constructed on the right-of-way within 8 feet of the edge of pavement without the written approval of the director of public works and a majority of the members of the city commission.”
Neighbors opposed
Elm Avenue currently ends near the driveway of the beachfront home at 107 Elm Ave. that Wendy and Robert Jordan purchased for $4 million in April 2021.
The Jordans oppose Campbell’s proposed development because it would obstruct their existing view of the beach and the Gulf of Mexico. The Jordans disagree with a 2021 Florida Department of Environmental Protection (FDEP) ruling in which an administrative law judge upheld the building permit FDEP previously issued in 2020 for the construction of Campbell’s home seaward of the state’s Coastal Construction Control Line (CCCL).
The Jordans’ opposition includes the still-active Preserve AMI campaign publicity launched in 2021 with the assistance of family friend and advertising and creative resource, Patrick Coyne. The campaign initially included yard signs and newspaper advertisements urging Murphy and other elected officials to “Do the right thing” regarding any future permitting decisions made at the local level.
On June 25, 2020, FDEP provided Campbell with a notice to proceed and a permit for her proposed construction activities. The FDEP approval allowed those whose substantial interests may be affected by the department’s action to petition for a formal administrative hearing.
On Aug. 3, 2020, attorney David Levin filed a petition for such a hearing with the Florida Department of Administrative Hearings (DOAH) on behalf of potentially impacted property owners David Morris, Ling Liu, DAR Real Estate Enterprises and Richard Theidel. This administrative action took place before the Jordans bought the home at 107 Elm.
“Campbell’s proposed structures do not comply with the applicable requirements and are not eligible for a CCCL permit. Petitioners seek a final order revoking Permit No. ME-1341,” Levin stated in his filed petition.

In response to the petitioners’ request, administrative law judge Francine Ffolkes presided over a six-day DOAH hearing. On June 7, 2021, Ffolkes issued her written recommended order, which stated, “It is hereby recommended that DEP enter a final order granting Campbell’s application for a CCCL permit to construct a single-family residence and associated structures seaward of the CCCL.”
On July 20, 2021, Interim FDEP Secretary Shawn Hamilton signed the final order that formalized Ffolkes’ recommended order. The final order provided a 30-day appeal period. According to an FDEP spokesperson, no appeal was sought.
On July 6, 2021, Anna Maria Building Official Luke Curtis sent an email to Murphy that referenced two previous building area determinations made by two different third-party firms in 2017 and 2018.
“The buildable area determinations confirm that the lot located at 105 Elm is a buildable lot as per city code, but that the final determination would be made by the FDEP,” Curtis stated in his email. “Prior to any building permit being accepted by the building department, a development permit, along with a site plan – including but not limited to access to the property, sewer, water and electric utilities – will need to be considered and approved by city commission.”













